Premium Eco-Home Collection

Explore Our Floor Plans

Thoughtfully designed layouts that harmonize sustainable living with contemporary elegance

Carbon Neutral
Energy Efficient
Modern Design

Lodge Plans & Elevations

Explore our comprehensive collection including site layout, architectural elevations, and detailed floor plans. Each lodge can be tailored to your own specification.

Site Map & Property Locations

Overview of the Hillmorton Lodges development showing all property locations on the site

Site Map - Property Locations

Development Site Plan

Interactive map showing all available lodge locations within the Hillmorton development

Architectural Elevations

External views showing all four elevations: Front End, Nearside, Rear End, and Offside

Lodge Elevations - All Views

All Elevation Views

Complete architectural elevations showing Front End, Nearside, Rear End, and Offside perspectives

Lodge Elevation Photo

Elevation Photo

Photographic representation of the lodge elevation design

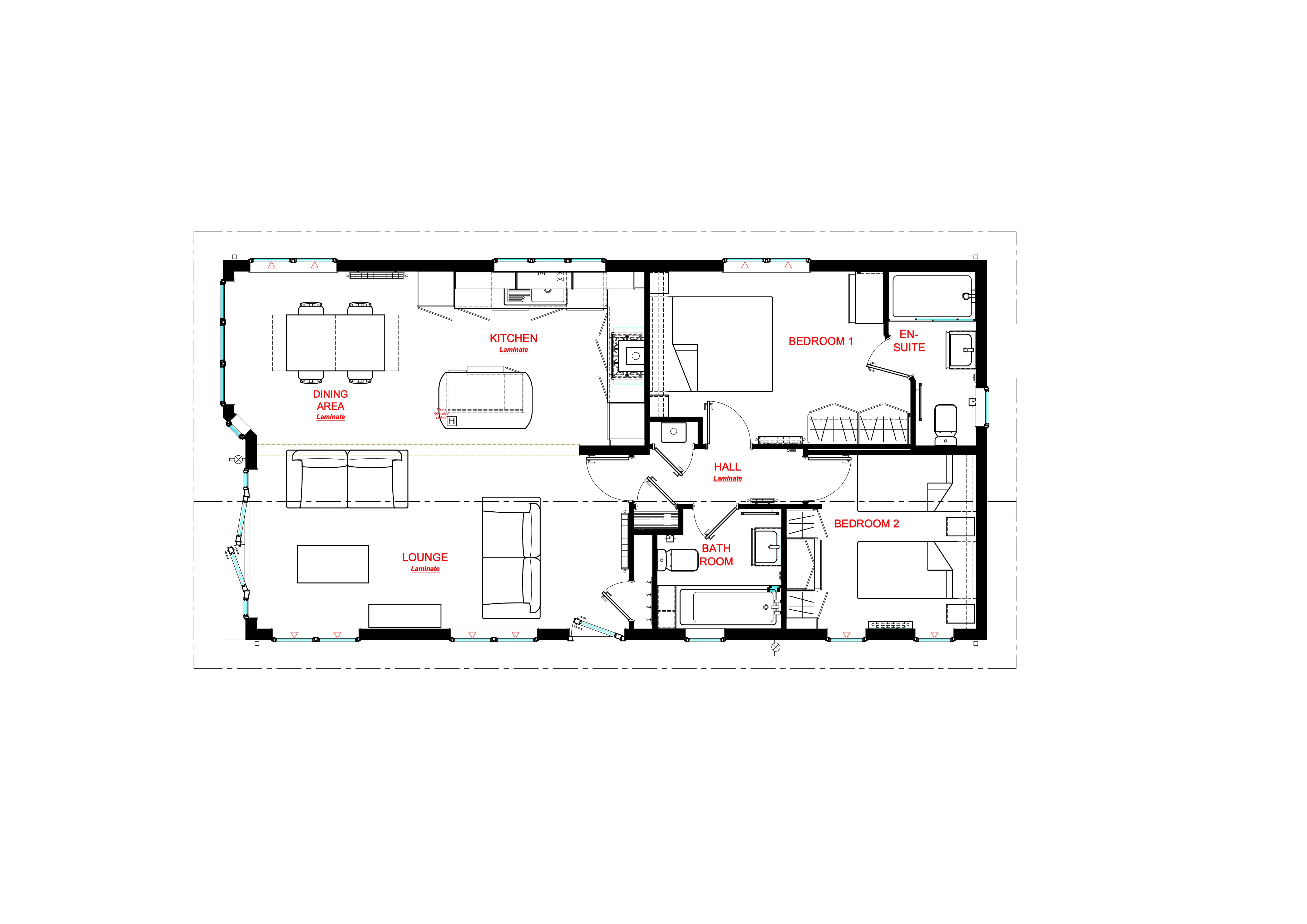
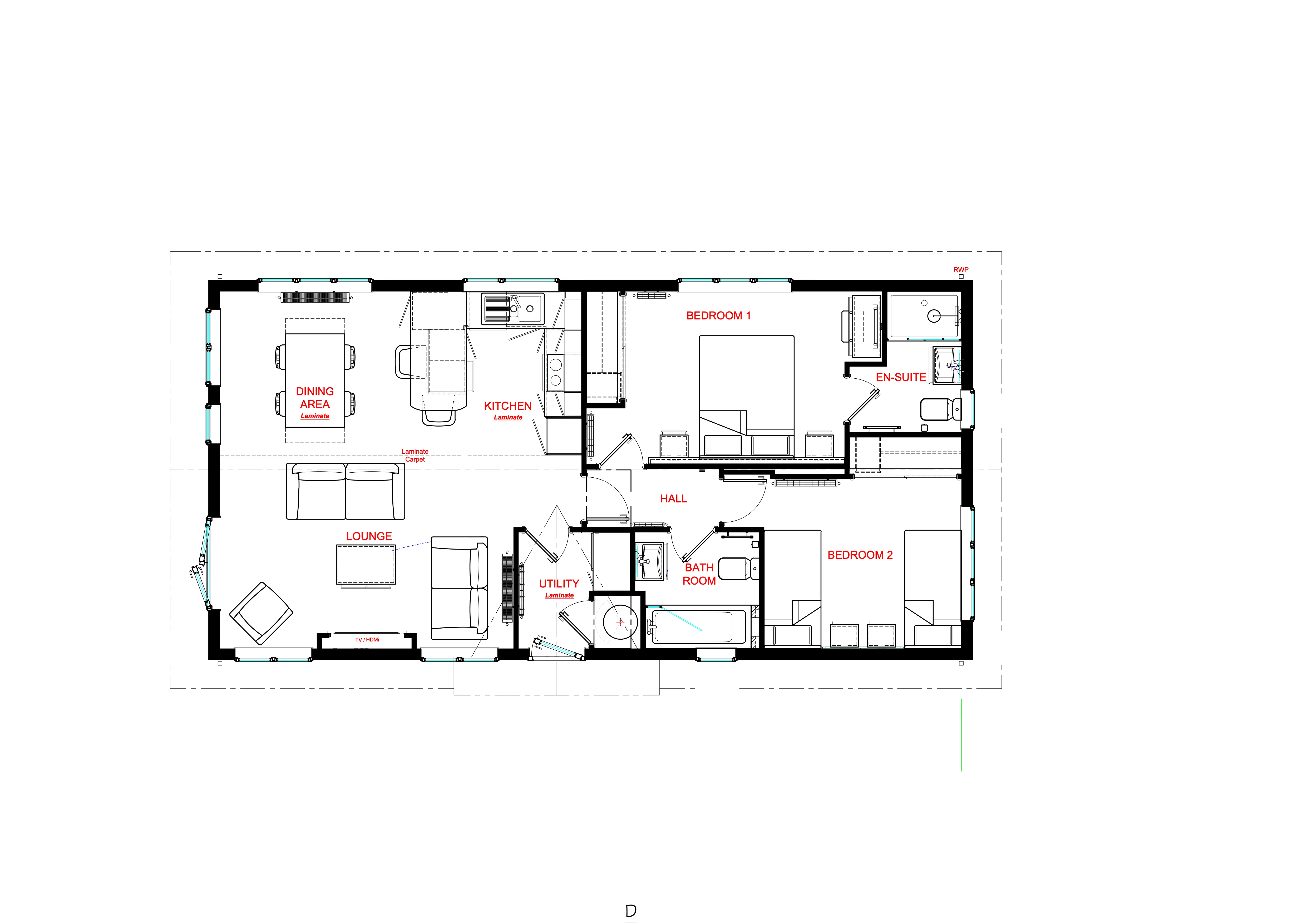
Detailed Floor Plans

Comprehensive floor plans showing room layouts and spatial arrangements

Floor Plan - The Cedar

The Alderney

Various sizes available • 2-3 bed • 2 bath

Click to view detailed specifications

View Details
Floor Plan - The Alderney

Wessex

Various sizes available • 2-3 bed • 1-2 bath

Click to view detailed specifications

View Details

The Alderney

Specifications

Built to BS 3632 residential standard

Protected by a 10-year GoldShield structural warranty

Split, pitched, tiled roof (roof tiles guaranteed for 50 years)

uPVC double glazing (10-year frame warranty + 5-year glazing warranty)

CanExel, Ced'R-Vue cladding (other colours and claddings available)

Feature glazing and French doors to angled front elevation

Large full-height picture windows

White panelled ceilings throughout

Design Philosophy

Contemporary and light, with distinctive features, the Alderney luxury lodge feels spacious in any footprint thanks to its clever contemporary design, making it perfect for families of all sizes.

The exterior includes a striking split roofline and feature glazing to the angled front elevation, and with CanExel, Ced'R-Vue, cladding, large picture windows and French doors to the lounge, this lodge is impressive on every level!

Neutral tones with highlights of dusky blue add timeless appeal, and vaulted, panelled ceilings keep the interior crisp and modern in feel – this is a lodge that will not date.

Layout Options

The kitchen island doubles up as a breakfast bar, so there's an abundance of seating for families.

Restful Bedrooms

Blues in the bedrooms add a slightly nautical feel, and feature lighting creates a calming atmosphere.

Perfect Holiday Home

Perfect for multi-generational families with practical hanging space and full height windows for beautiful morning light.

Available Configurations

Standard Sizes

Choose the perfect configuration for The Alderney to suit your lifestyle

50' x 20' En-suite & utility
3DB beds 2 baths
50' x 20' En-suite, utility & study
2DB beds 2 baths
45' x 20' En-suite
3DB beds 2 baths
45' x 20' En-suite & utility
2DB beds 2 baths
40' x 20' En-suite
2DB beds 2 baths
36' x 20' En-suite
2DB beds 2 baths

The minimum size for this model is 36' x 20' and the maximum size is 65' x 22'. Prices available on request.

Ready to call one of these home?

Take the next step towards sustainable luxury living. Our team is ready to help you find your perfect plot.

No obligation • Free consultation • Expert guidance